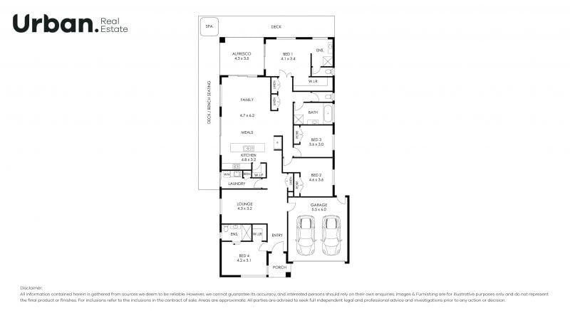
Situated on a whisper quiet street, centrally located and on one of the largest rectangular parcels the estate has to offer, I proudly introduce 11 Olea Street to the market. A rare offering being a 27 square single level with the choice of two master suites, this home really has it all.
As you enter you will be greeted by a wide entry, high ceilings and first master suite to your left with walk in robe and ensuite. The media room is the perfect space to watch a movie with family or for the children to relax and unwind this then flows to the open plan kitchen, living and dining area. The kitchen comprises of stone benchtops, 900mm gas appliances and walk in pantry. The right and rear of the home houses three bedrooms including the second master suite. This also opens out to the alfresco and rear yard which is fully decked as your own private oasis.
The home also comprises of a spa pool and outdoor entertaining area to host guests all year round! Built by reputable builder Simonds Homes, you know this home has and will stand the test of time.
Features:
- 27 square Home (248m2) 30 squares inclusive of the decking
- Security system
- Downlights throughout
- Low maintenance (decking surrounding entire home)
- Built by Simonds Homes
- Ducted air conditioning
- Floorboards to bedrooms
- Three full bathrooms
- Spa pool
Disclaimer:
All information contained herein is gathered from sources we deem to be reliable. However, we cannot guarantee its accuracy, and interested persons should rely on their own enquiries. Images & Furnishing are for illustrative purposes only and do not represent the final product or finishes. For inclusions refer to the inclusions in the contract of sale. Areas are approximate.
All parties are advised to seek full independent legal and professional advice and investigations prior to any action or decision
As you enter you will be greeted by a wide entry, high ceilings and first master suite to your left with walk in robe and ensuite. The media room is the perfect space to watch a movie with family or for the children to relax and unwind this then flows to the open plan kitchen, living and dining area. The kitchen comprises of stone benchtops, 900mm gas appliances and walk in pantry. The right and rear of the home houses three bedrooms including the second master suite. This also opens out to the alfresco and rear yard which is fully decked as your own private oasis.
The home also comprises of a spa pool and outdoor entertaining area to host guests all year round! Built by reputable builder Simonds Homes, you know this home has and will stand the test of time.
Features:
- 27 square Home (248m2) 30 squares inclusive of the decking
- Security system
- Downlights throughout
- Low maintenance (decking surrounding entire home)
- Built by Simonds Homes
- Ducted air conditioning
- Floorboards to bedrooms
- Three full bathrooms
- Spa pool
Disclaimer:
All information contained herein is gathered from sources we deem to be reliable. However, we cannot guarantee its accuracy, and interested persons should rely on their own enquiries. Images & Furnishing are for illustrative purposes only and do not represent the final product or finishes. For inclusions refer to the inclusions in the contract of sale. Areas are approximate.
All parties are advised to seek full independent legal and professional advice and investigations prior to any action or decision
Marsden Park
11 Olea Street
4 3 2
FOR SALE
SOLD (Sold)
Request Contract
For more information
Email Agent
Comparable properties
Where to find this property
Marsden Park
Meet your local Marsden Park real estate team. Urban Land Housing have been actively serving the local community for years in providing exceptional real estate sales and property management services. Marsden Park is a highly desired suburb for all buyers, renters and investors for many reasons.
Contact our team today for a complimentary property appraisal or to get in touch regarding property management opportunities.
Read More





