An exciting opportunity to secure your dream home at Edan Estate, Leppington
Experience the sprawling future parkland and only 3km to Leppington Village Shopping Centre. Envision weekends abundant with leisurely picnics and sun-soaked outings with your loved ones.
A great opportunity for those looking to either downsize to single level living or upsize into their family home.
This modern floor plan has been architecturally designed to enjoy the benefits of a brand-new home without comprising on lifestyle.
Edan Estate is situated in the most convenient pocket of South-West Sydney; only minutes from all new infrastructure for your family including Schools/Shopping/new airport
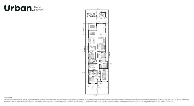
PROPERTY FEATURES:
- 370m2 land & 218m2 single level living
- Dynamic floor plan with option to reconfigure/adjust
- Open plan living
- Estimated late 2025 registration
- 5% deposit
- Level land
- All services connected
- Torrens title
- Choose any builder
Inclusions:
- Advantage Luxury Promotion included
- 7 Star BASIX building requirements
- Riviera brick piers facade option (adjusted to suit single car garage)
- Tiles to porch & alfresco
- High ceilings 2.7m
- Ducted air-conditioning
- Caroma concealed trap vitreous China toilet suite
- Closetmaid shelving system to all robes, linen and pantry
LOCATION FEATURES
- 18km to new Western Sydney Airport
- 3km to Leppington Village
- 3.9km to Leppington Train Station
- New proposed childcare centre within the project
- New proposed park within the project
- 1.4km to Willowdale
For more information contact the Sales Team on 0449 722 323
Open 7 days, 10 am - 4 pm
Disclaimer: The information presented has been provided from sources we deem to be reliable. We have not verified whether the information is accurate and do not accept any responsibility to any person and do no more than pass it on. All interested parties should rely on their own inquiries in order to determine the accuracy of this information
Experience the sprawling future parkland and only 3km to Leppington Village Shopping Centre. Envision weekends abundant with leisurely picnics and sun-soaked outings with your loved ones.
A great opportunity for those looking to either downsize to single level living or upsize into their family home.
This modern floor plan has been architecturally designed to enjoy the benefits of a brand-new home without comprising on lifestyle.
Edan Estate is situated in the most convenient pocket of South-West Sydney; only minutes from all new infrastructure for your family including Schools/Shopping/new airport
PROPERTY FEATURES:
- 370m2 land & 218m2 single level living
- Dynamic floor plan with option to reconfigure/adjust
- Open plan living
- Estimated late 2025 registration
- 5% deposit
- Level land
- All services connected
- Torrens title
- Choose any builder
Inclusions:
- Advantage Luxury Promotion included
- 7 Star BASIX building requirements
- Riviera brick piers facade option (adjusted to suit single car garage)
- Tiles to porch & alfresco
- High ceilings 2.7m
- Ducted air-conditioning
- Caroma concealed trap vitreous China toilet suite
- Closetmaid shelving system to all robes, linen and pantry
LOCATION FEATURES
- 18km to new Western Sydney Airport
- 3km to Leppington Village
- 3.9km to Leppington Train Station
- New proposed childcare centre within the project
- New proposed park within the project
- 1.4km to Willowdale
For more information contact the Sales Team on 0449 722 323
Open 7 days, 10 am - 4 pm
Disclaimer: The information presented has been provided from sources we deem to be reliable. We have not verified whether the information is accurate and do not accept any responsibility to any person and do no more than pass it on. All interested parties should rely on their own inquiries in order to determine the accuracy of this information
Leppington
Lot 220 (p/33 Park Road
5 2 1
- Land Size 370 m2
- Building Size 218 m2
FOR SALE
SOLD (Sold)
Request Contract
For more information
Email Agent
Comparable properties
Where to find this property
Leppington
Meet your local Leppington real estate team. Leppington is a suburb located in the South West of Sydney, in the local government area of the City of Liverpool and Camden. Surrounding suburbs include Edmondson Park, Denham Court and Rossmore. Leppington is located approx. 60 minutes from the Sydney CBD.
Read More






