Urban proudly presents this Hudson Homes-built residence, offering modern design and a tranquil bush front outlook. Positioned on a 479sqm block, this home combines versatile living spaces with thoughtful inclusions, perfect for growing families seeking both comfort and convenience.
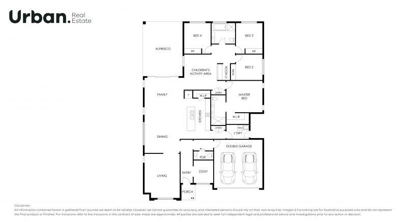
From the study at the front of the home through to the open-plan living and alfresco, every detail has been carefully considered. The floorplan provides flexibility with multiple living areas, a dedicated IT nook, and a seamless connection between indoor and outdoor spaces. Surrounded by natural bushland, the property offers a rare sense of privacy while remaining close to all the amenities Colebee is renowned for.
Home Features:
- Built by Hudson Homes and set on a 479sqm bush front block with serene views.
- Four spacious bedrooms plus a front study, with an additional IT nook and study nook for family flexibility.
- Master suite featuring a walk-in robe and ensuite with double vanities and a shower niche.
- Bedrooms 2, 3, and 4 appointed with mirrored built-in wardrobes.
- Front living area plus a rumpus/children's activity room, providing multiple living options.
- Stylish double-tone kitchen with 900mm gas appliances and a step-in pantry.
- Open-plan kitchen, living, and dining area filled with natural light.
- Separate powder room for added convenience.
- Alfresco entertaining area overlooking the bushland.
- Downlights throughout, creating a bright and modern feel.
- Ducted 2-zone air conditioning for year-round comfort.
- Main bathroom with built-in bath, single vanity, and shower niche.
- Linen cupboard with cabinetry plus laundry with side access.
- Double car garage with internal access.
- Side access offering additional storage or utility potential.
- Positioned in a sought-after estate close to schools, transport, shops, and Stonecutters Ridge Golf Club.
With its bush front setting, versatile floorplan, and high-quality inclusions, 18 Salvador Circuit represents an exceptional opportunity for families seeking lifestyle and convenience in the heart of Colebee.
Stonecutters Ridge Points of Difference:
- Stonecutters Ridge Golf Club (public access welcome)
o Weddings & functions, children's parties, seminars and more
o Incl. sports bar, terrace, gaming room, restaurant & pro shop
o For more information visit www.stonecuttersridge.com.au
- Award winning Greg Norman designed golf course (feat. tennis courts, driving range, golf simulator & more)
- Stonecutters Ridge community centre (available for hire)
- Colebee Village Green (feat. Childcare, medical centre, grocery store, upcoming gym)
- Greenway shopping village including Woolworths, BWS, Bakery, Sushi Bar, Chemist, Hairdresser + more
- A few min drive to the Sydney Business Park feat. IKEA, Bunnings, Home Hub, ALDI & more
- Easy access to the M7 & Richmond Rd and a bus route services the estate
- Close proximity to Schofields and Quakers Hill train stations
Local Area Amenity & Features:
- 2 min to Stonecutters Ridge Golf Club
- 4 min to Greenway shopping Village (incl Woolworths)
- 5 min to William Dean Public School
- 6 min to M7 Entry (Richmond Rd)
- 7 min to Sydney Business Park
- 10 min to Plumpton High School
- 10 min to Richard Johnson Anglican School
- 14 min to Schofields Train Station
- 17 min to Norwest Business Park
- 20 min to Rouse Hill Town Centre
- 42 min to Sydney CBD
For all local area and estate information, please visit www.stonecuttersridge.com.au or further details contact Nathan Fyffe on 0487 253 300
Disclaimer: All information contained herein is gathered from sources we deem to be reliable. However, we cannot guarantee its accuracy, and interested persons should rely on their own enquiries. Images & Furnishing are for illustrative purposes only and do not represent the final product or finishes. For inclusions refer to the inclusions in the contract of sale. Areas are approximate. All parties are advised to seek full independent legal and professional advice and investigations and or STCA prior to any action or decision.
From the study at the front of the home through to the open-plan living and alfresco, every detail has been carefully considered. The floorplan provides flexibility with multiple living areas, a dedicated IT nook, and a seamless connection between indoor and outdoor spaces. Surrounded by natural bushland, the property offers a rare sense of privacy while remaining close to all the amenities Colebee is renowned for.
Home Features:
- Built by Hudson Homes and set on a 479sqm bush front block with serene views.
- Four spacious bedrooms plus a front study, with an additional IT nook and study nook for family flexibility.
- Master suite featuring a walk-in robe and ensuite with double vanities and a shower niche.
- Bedrooms 2, 3, and 4 appointed with mirrored built-in wardrobes.
- Front living area plus a rumpus/children's activity room, providing multiple living options.
- Stylish double-tone kitchen with 900mm gas appliances and a step-in pantry.
- Open-plan kitchen, living, and dining area filled with natural light.
- Separate powder room for added convenience.
- Alfresco entertaining area overlooking the bushland.
- Downlights throughout, creating a bright and modern feel.
- Ducted 2-zone air conditioning for year-round comfort.
- Main bathroom with built-in bath, single vanity, and shower niche.
- Linen cupboard with cabinetry plus laundry with side access.
- Double car garage with internal access.
- Side access offering additional storage or utility potential.
- Positioned in a sought-after estate close to schools, transport, shops, and Stonecutters Ridge Golf Club.
With its bush front setting, versatile floorplan, and high-quality inclusions, 18 Salvador Circuit represents an exceptional opportunity for families seeking lifestyle and convenience in the heart of Colebee.
Stonecutters Ridge Points of Difference:
- Stonecutters Ridge Golf Club (public access welcome)
o Weddings & functions, children's parties, seminars and more
o Incl. sports bar, terrace, gaming room, restaurant & pro shop
o For more information visit www.stonecuttersridge.com.au
- Award winning Greg Norman designed golf course (feat. tennis courts, driving range, golf simulator & more)
- Stonecutters Ridge community centre (available for hire)
- Colebee Village Green (feat. Childcare, medical centre, grocery store, upcoming gym)
- Greenway shopping village including Woolworths, BWS, Bakery, Sushi Bar, Chemist, Hairdresser + more
- A few min drive to the Sydney Business Park feat. IKEA, Bunnings, Home Hub, ALDI & more
- Easy access to the M7 & Richmond Rd and a bus route services the estate
- Close proximity to Schofields and Quakers Hill train stations
Local Area Amenity & Features:
- 2 min to Stonecutters Ridge Golf Club
- 4 min to Greenway shopping Village (incl Woolworths)
- 5 min to William Dean Public School
- 6 min to M7 Entry (Richmond Rd)
- 7 min to Sydney Business Park
- 10 min to Plumpton High School
- 10 min to Richard Johnson Anglican School
- 14 min to Schofields Train Station
- 17 min to Norwest Business Park
- 20 min to Rouse Hill Town Centre
- 42 min to Sydney CBD
For all local area and estate information, please visit www.stonecuttersridge.com.au or further details contact Nathan Fyffe on 0487 253 300
Disclaimer: All information contained herein is gathered from sources we deem to be reliable. However, we cannot guarantee its accuracy, and interested persons should rely on their own enquiries. Images & Furnishing are for illustrative purposes only and do not represent the final product or finishes. For inclusions refer to the inclusions in the contract of sale. Areas are approximate. All parties are advised to seek full independent legal and professional advice and investigations and or STCA prior to any action or decision.
Colebee
18 Salvador Circuit
4 2 2
- Land Size 479 m2
FOR SALE
SOLD (Sold)
Request Contract
For more information
Email Agent
Comparable properties
Where to find this property
Colebee
Meet your local Colebee real estate team. People are drawn to Colebee to enjoy the great lifestyle on offer, picturesque views of Greg Norman’s world class championship golf course, larger lot living, no strata fee’s or levies and to enjoy the Stonecutters Ridge Golf Club and facilities therein.
Read More





