Positioned in Austral's most established master planned community, this brand new, architecturally designed 5-bedroom single-story home delivers the perfect blend of style, comfort, and convenience.
Crafted by multi award-winning builder Rawson Homes, every detail has been carefully considered - from the open-plan living to the luxurious turnkey inclusions. Whether you're a family looking to settle into a thriving community or an investor chasing high rental yields and record-low vacancy rates, this home ticks all the boxes.
Key Features:
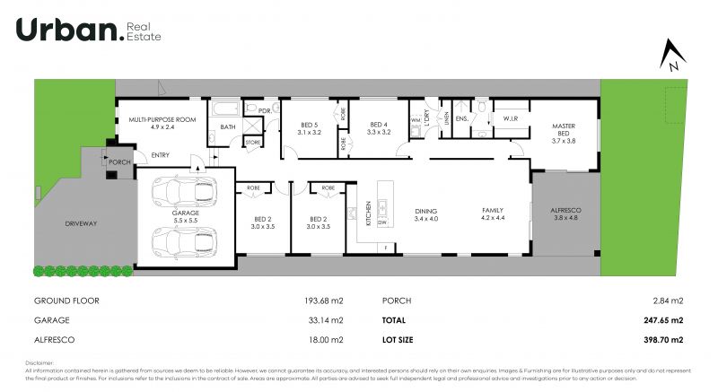
- 5 bed | 2 Bath | 2 Car
- 398.7sqm land size
- Brand new home – move in now
- Full turnkey inclusions, including landscaping, fencing and driveway
- Home builder grant + stamp duty concession available for those that comply
- Open living areas overlooking outdoor alfresco
- Designer kitchen includes stone benchtops, 20mm square edges and high-end appliances
- Ducted air conditioning, alarm system,
Location Features:
- POLL position location: Apart of Austral' largest established community – Austral Estate
- Moments away from Schools, shops, and Leppington
- 1.2km St Anthony of Padua Catholic College
- 1.6km from Austral Town Centre
- 4.3km away from Leppington train station
- Record low vacancy rate, high rental yields for investors
For further information please call David Power on 0487 001 487
*Disclaimer: All information contained herein is gathered from sources we deem to be reliable. However, we cannot guarantee its accuracy, and interested persons should rely on their own enquiries. Images are for illustrative purposes only and do not represent the final product or finishes. For inclusions refer to the inclusions in the contract of sale. Areas are approximate. All parties are advised to seek full independent legal and professional advice and investigations prior to any action or decision.
Crafted by multi award-winning builder Rawson Homes, every detail has been carefully considered - from the open-plan living to the luxurious turnkey inclusions. Whether you're a family looking to settle into a thriving community or an investor chasing high rental yields and record-low vacancy rates, this home ticks all the boxes.
Key Features:
- 5 bed | 2 Bath | 2 Car
- 398.7sqm land size
- Brand new home – move in now
- Full turnkey inclusions, including landscaping, fencing and driveway
- Home builder grant + stamp duty concession available for those that comply
- Open living areas overlooking outdoor alfresco
- Designer kitchen includes stone benchtops, 20mm square edges and high-end appliances
- Ducted air conditioning, alarm system,
Location Features:
- POLL position location: Apart of Austral' largest established community – Austral Estate
- Moments away from Schools, shops, and Leppington
- 1.2km St Anthony of Padua Catholic College
- 1.6km from Austral Town Centre
- 4.3km away from Leppington train station
- Record low vacancy rate, high rental yields for investors
For further information please call David Power on 0487 001 487
*Disclaimer: All information contained herein is gathered from sources we deem to be reliable. However, we cannot guarantee its accuracy, and interested persons should rely on their own enquiries. Images are for illustrative purposes only and do not represent the final product or finishes. For inclusions refer to the inclusions in the contract of sale. Areas are approximate. All parties are advised to seek full independent legal and professional advice and investigations prior to any action or decision.
Features
- Air Conditioning
- Built-ins
- Close to Schools
- Close to Shops
- Close to Transport
- Ducted Cooling
- Ducted Heating
- Fully Fenced
Austral
23 Parhelion Street
5 2 2
- Land Size 398.7 m2
FOR SALE
SOLD (Sold)
Request Contract
For more information
Email Agent
Comparable properties
Where to find this property
Austral
Meet your local Austral real estate team. Austral is located in the South-West of Sydney, in the local government area of the City of Liverpool. Surrounding suburbs including Kemps Creek, Hoxton Park, Leppington and Rossmore. Located within close distance to the M5 and M7 Westlink Motorways, Austral provides direct access to the Sydney CBD (55 minutes) and other parts of greater Sydney. Interline Bus Services connects Bringelly to Liverpool via Rossmore, Austral, Hoxton Park and Cartwright.
Contact Read More





